乐发II500

乐发II500

HGL隔离开关

一,适用范围

HGL系列隔离开关(以下简称为开关),适用于交流50Hz、额定电压400V、约定发热电流至3200A的工企业配电设备中,用作不频繁接通与分断电流及电气隔离之用(1000A以上只用作电气隔离),广泛应用于建筑、电力、石油化工及其他行业的配电系统和自动化系统中。

开关造型美观、新颖简洁、结构简单、操作方便,符合IEC60947-3、GB/T14048.3标准。


二,型号含义


三,主要参数

●HGL系列隔离开关的主要技术参数(见下表)

乐发II500 ● 侧面操作、柜外操作、柜外操作、板后接线、直接观察触头窗口等隔离开关的主要参数全部与HGL相对应。


四,结构特征

● 开关具有3极、4极(3极+可通断中性极)之分。
● 开关主要由底座、大盖、小盖、触头系统、操作机构、手柄等部份组成。开关采用弹簧储能、瞬时释放的加速关合机构及同时接通与断开并联双断点的触头结构,极大的提高了开关的电气性能与机械性能。
● 开关采用玻璃纤维增强不饱和聚脂模塑料及手动操作手柄,具有很高的介电性能、防护能力及可靠的操作安全性。
● 透明型开关的大小盖采用高透明、高强度、耐高温的新型材料压制而成,能够直接观察各触头的通断状态与操作机构的运行状态,保证了开关操作时的安全可靠。
● 开关正面设有标记窗口,指示触头的通断状态;可根据需要提供后面观察窗口,直接观察触头的通断状态,保证开关操作的可靠性和安全性。
● 操作手柄可直接装在开关上操作(简称柜内操作),也可通过加长轴在配电柜门外操作(简称柜外操作),提供操作方便。
● 可根据需要提供常开常闭辅助触点及板前板后接线方式,以满足用户的多种需求。
● 在分断位置“0”时,可用两至三把锁锁住手柄,以防止误操作。
乐发II500 ● 转换隔离开关具有三个指示位置:“I”表示开关I接通、开关Ⅱ断开;“0”表示开关I、开关Ⅱ都断开、开关I断开。

 

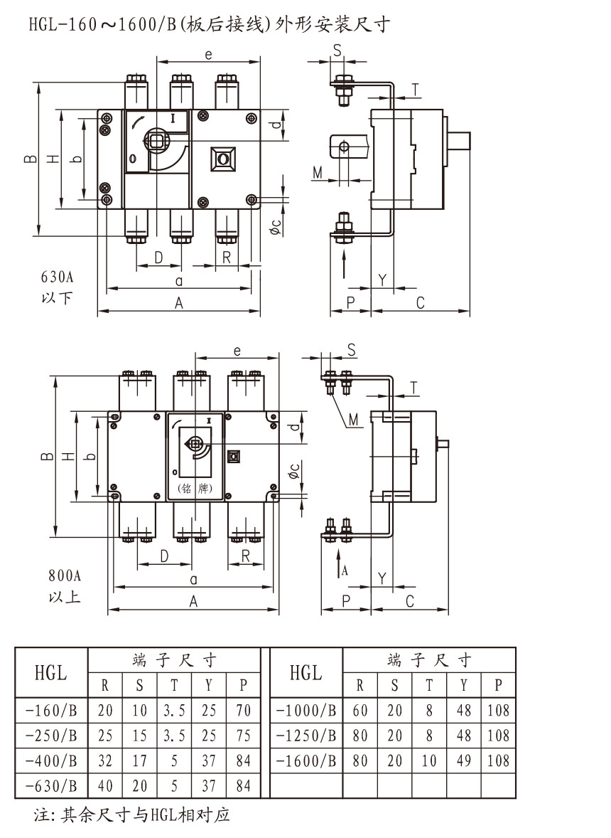
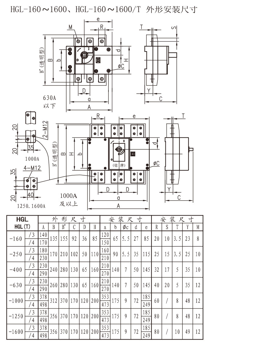
五,外形安装尺寸

商务
乐发II500 询价

企业商务询价
微信二维码

项目
咨询

企业项目咨询
微信二维码

电话
咨询

0577-62333333
客服热线